Solebury School | New Hope, Pennsylvania U.S.A.
CORN CRIB
The Solebury School occupies ninety-nine rural acres in Solebury Township, in Bucks County, Pennsylvania. Founded in 1925, it is an independent, private preparatory school for grades 7 through 12. The school serves 220 boarding and day students in an environment that supports and responds to a multicultural, coeducational student population.
Despite its close proximity to the urban centers of New York and Philadelphia, the school maintains a quiet, country character and intimate scale associated with small, individual buildings set amongst trees and meadows. The connection to the outdoors is one of the most valued aspects of the experience at Solebury for both students and teachers. Preserving the quality of the school’s environment is a school mandate.
The architectural development of the Abbe Science Center at Solebury School is informed by the school’s profound respect for the individual, the need for places that stimulate interaction amongst students and their instructors, and modern interpretations of the vernacular architecture common to this part of Bucks County. It incorporates natural materials that will age with time, and sustainable strategies to create a healthy and responsive architecture.
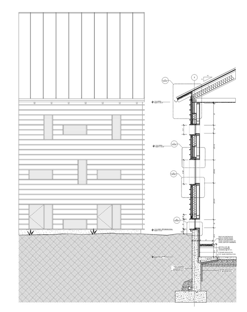
The building’s distinctive cedar skin is formed of custom-milled wood profiles and deep shadow lines. At the entry nearest the center of campus, the wood slats open to allow light and air to filter through it. At the two-story lounge, the wood skin shifts in both scale and texture. A series of small rectangular apertures within the fabric of this wall frame vignettes of the expansive landscape beyond.
The building is organized by single-loaded corridors along the west and south elevations. The corridors are lined by full-height glass doors that allow the spaces to open directly to the outside. They are important thermal buffers mediating temperature and light in the classrooms and science labs, while still allowing connections with the outside. The south-facing corridor near the laboratories uses a deeply-colored concrete floor to collect and re-radiate sun to interior spaces during the winter months.
The corridors meet in a commons, or lounge area, at the corner of the building. Located adjacent to a faculty workroom and near student restrooms, the lounge is a space for meeting, study, or reflection.
The building’s science laboratories allow for areas of group interaction and individual experimentation. Similarly, the classrooms have areas for lectures/discussion as well as spaces for individual study. Each room has individual temperature control, but all are served by a building-wide energy recovery system. In addition, a masonry trombé wall captures winter heat in the greenhouse and uses it to heat the adjacent biology laboratory.















Project Team
- Owner: Solebury School, New Hope PA | www.solebury.org. Headmaster: John D. Brown.
- Architect: RMJM (formerly Hillier Architecture), 500 Alexander Park, Princeton NJ 08543-6395 | Tel. 609.452.8888 | Fax. 609.452.8332 | www.rmjm.com. Principal-in-Charge + Lead Designer: Barbara A. Hillier; Designer + Project Manager: Bradley Walters; Designer + Project Architect: José A. Atienza; Senior Technical Architect: Charlie Maira; Delineator: Kevin Westerbeck; Signage: Despina Raggousis.
- Structure/Mechanical/Electrical/Plumbing/Fire Protection Engineers: Greenman-Pedersen Inc. (formerly Hillier Engineering & Technologies) | www.gpinet.com. Structural: Marc Bowen; Mechanical: Frederick Broberg; Electrical: James Pfluger; Plumbing: Michael Petrochko.
- General Contractor/Construction Manager: E. Allen Reeves, Inc., 1145 York Road, Abington, PA 19001 | Tel. 215.884.2255 | Fax. 215.884.7059 | www.eareeves.com. President: Robert N. Reeves, Jr.; Project Manager: Daryl Boorse; Project Superintendent: Jared Giles; Project Estimator: Samuel Moore.
- Landscape Architect: Kevin Kester, Van Cleef Engineering Associates.
- Lighting: Sandra M. Stashik, Grenald Waldron Associates | www.gwalighting.com.
- Photography: Bradley Walters, Jose Atienza, Albert Vecerka | ESTO | www.esto.com.
Publications
- Taggart, Jim, ed. “Abbe Science Center, Solebury School.” The Cedar Book: Inspiration for the Use of Western Red Cedar. Canada: Janam Publications, Inc., October 2007. 36-41.
- Youblin, Hou, ed. “Abbe Science Center in Solebury School.” Urbanism and Architecture, May 2006, No. 20, Con. 20, 60-62.
- “A Corn-Crib Exposé,” A+D (Architecture + Design: A Journal of Indian Architecture), Vol. XXII, No. 10, October 2005.
- Heinze, Jacqueline. “More than Just a Pretty Space.” Scholastic Administrator, Dec/Jan 2005.
- Griffith, Don (ed.). The Wood Design Awards 2004: A North American Program of Architectural Excellence. Halifax: Tuns Press, 2004.
- Wood Design & Building Magazine, Fall 2004, Issue #29
- Wood Le Bois Magazine, Fall 2004, Issue #47
- School Construction News, September 2004
- Abbe Science Center, Architectural Record, March 2004
- “Innovative design blends past with present.” The New Hope Gazette. 1 January 2004.
- Martin, Antoinette. “Innovative School Buildings Win Design Awards.” The New York Times. December 7, 2003 (Published: 12-07-2003 , Late Edition – Final , Section 11 , Column 1 , Page 7)
- A Rural Obligation, www.schooldesigner.com
- “The Science of Solebury: Solebury School dedicates new science center.” Interior Design, 11/21/2003
Awards
- Honor Award, Wood Design & Building, 2004
- Recognition Award, AIA Philadelphia, 2004
- Silver Medal – Highest Award, AIA Pennsylvania, 2004
- Gold Award for Excellence, AIA New Jersey, 2003
- Award of Excellence, Associated Builders and Contractors, Inc. (ABC), Southeast Pennsylvania Chapter, 2003
- Excellence in Design Tour, Central Bucks Chamber of Commerce, 2005
Project Data
- Area: 13,200 gross square feet
- Construction cost: $3,067,576
- Completion: 2003
General Specifications
- Structural system: Concrete footings, slab-on-grade, structural steel frame, bearing-wall cold-formed metal framing, and steel roof deck
- Exterior Cladding: Wood: Western Red Cedar – custom milled profiles by K+L Millwork
- Exterior Cladding: Masonry: Limited masonry in the form of hand-laid fieldstone at the west entrance
- Exterior Cladding: Aluminum/Glass storefront: Kawneer ‘Encore’ Framing System
- Roofing: Metal: Atas International, Inc.- Standing Seam Metal Roof
- Windows: Aluminum: Kawneer – Aluminum frame custom windows in the classrooms.
- Glazing: Glass: Low E Insulating Glass (Blue Green Tint) by Alderfer Glass Co.
- Doors: Entrances: Kawneer ‘Encore’
- Wood doors: Steelcraft (Frame) / Mohawk (Flush Door)
- Sliding doors: Arcadia custom glass sliding doors in corridors
- Hardware: Locksets: Schlage; Hinges: Hager/Kawneer; Closers: LCN; Exit devices: Dor-O-Matic; Pulls: Kawneer; Security devices: Schlage
- Cabinet hardware: Hafele
- Cabinetwork and custom woodwork: K + L Woodworking, Inc. – Custom Cabinets/Shelving/Cubbies/Exterior Bench; American Millwork – Custom Lounge Bench
- Paints and stains: Benjamin Moore, Co. (Paints); Olympic (Exterior Wood Stain)
- Special surfacing: Forbo tackboard surface – in classrooms and at Lounge; Perforated Corrugated Steel by Centria – at radius wall in Lounge; Floor and wall tile by Dal Tile (restrooms)
- Resilient flooring: Azrock VCT
- Carpet: Shaw Industries – in Faculty Lounge
- Furnishings: Chairs: Classroom Chairs by Smith System; Lounge Chairs by Cape Furniture; Classroom Desks by Smith System; Lounge Tables by Fixtures Furniture.
- Lighting: Interior ambient lighting: Essential ‘Buds 1: Bianco’ (Lounge Pendant Fixture); Ledalite ‘Apex 55’ (Direct/Indirect Suspended – Classrooms); Lightolier ‘Lyteflood’ (Wallwash – Corridors); Insight ‘Paseo’ (Wallwash – Classroom)
- Lighting: Downlights: Portfolio Kurt Versen; Exterior: Lumiere (Sidewalk Bollard Fixture); Gardco (Steplight); Omegalux (Ground Recessed Wall Wash); McPhilben (Emergency Light)
- Plumbing: Toilet Lavatories: Eljer ‘Mayburne’ Lavatory; Toilets and Urinals: American Standard; Classroom Laboratory Sink: Elkay ‘Lustertone’; Toilet and Classroom Laboratory Faucet: Zurn; Water Fountain: Elkay
- Greenhouse: Florian Greenhouses
- Shading Fabric and Devices: MechoShade
- Signage: Custom stainless steel building signage by Agnew Signs

You must be logged in to post a comment.