A New Housing Proposal developed with and for the Tebughna People of the Native Village of Tyonek, Alaska U.S.A.
U.S. Department of Energy Solar Decathlon 2023 Design Challenge
First Place Award in the New Housing Division
Project Data
- Location: Tyonek, Alaska
- Climate Zone: 7
- Lot Size: 0.5 acre
- Building Size: 1,970 ft²
- Occupancy: 4 -6 people
- Construction Cost: $395/sf
- HERS Index Score: 32 (without PVs), 22 (with PVs)
- Average Utility Cost: $3,962
- Annual Carbon Emissions: 4.47
Technical Specifications
- R-Values:
- Exterior Wall: R-46
- Attic: R-89
- Framed Floor: R-76
- Windows: U- 0.182, SHGC 0.3
- On-Site PV: 5 kW (wall)
- Community PV: Implementing a village scale solar farm in partnership with Drexel (781 kW system)
Design Partners
- Native Village of Tyonek Tribal Council
- Tebughna Foundation
- Environmental Design Fund
- Community & Collage Partners Program
Industry Partners
- Cold Climate Housing Research Center
- Engineers Without Borders – Alaska Chapter
- Cook Inlet Housing Authority
Project Summary
The Tebughna Fireweed Team from the University of Florida presents a sustainable new housing design for the Native Village of Tyonek in Tyonek, Alaska. Located just north of the Kenai Peninsula, 40 miles from Anchorage, and accessible only by plane or boat, Tyonek is a subsistence community with a housing crisis. Existing housing in the village is old and in disrepair, and lacks adequate infrastructure to provide reliable electrical utility service through the long winter months. The thermal envelopes of these houses are inefficient, leading to exorbitant heating costs and suboptimal thermal comfort. Celebrating the tribe’s rich history and their intimate understanding of the region’s ecosystems, this new housing aims to restore the people’s autonomy and independence by creating homes that are powered by the sun. Designed to meet aggressive performance targets, the houses are also designed to weather and age gracefully over time in this arctic environment, with “right to repair” central to our design ethos.
In collaboration with the Native Village of Tyonek and the Tebughna Foundation, students and tribal members have discussed the critical needs of reliable energy sources and durable homes, as well as unique cultural requirements that the home must accommodate. It is designed for a multi-generational family, with a first-floor bedroom suite to support aging in place and large open areas for communal gatherings. Ample storage accommodates subsistence living in Tyonek. The homes are each powered by a 5 kW wall-mounted photovoltaic system, as well as a community-scale PV array that will be located nearby. The team is planning for possible future implementation of hydrogen fuel cells to allow for longer-term energy storage in the community.
DESIGN STRATEGY
The Tebughna (“the beach people” in the native Dena’ina Athabascan language) have lived along the northwest shore of the Cook Inlet in the territory of Tyonek for centuries. The people hunt and fish through the warm summer months, as they have for generations.
Inspired by the resilience and tenacity of the common fireweed (Chamerion angustifolium), this house is intended to be built quickly on-site with common building materials. The house uses light wood trusses for the elevated fl oor, exterior walls, and roof. These trusses provide an economical method for creating a well-insulated building envelope. Designed for its arctic environment, the house lifts above the cold ground. It incorporates vertical wall-mounted photovoltaic panels, an energy recovery ventilator, and a dedicated fresh-air system. A small wood stove provides critical backup heating and supplements the highly efficient air source heat pump.
PROJECT HIGHLIGHTS
Architecture
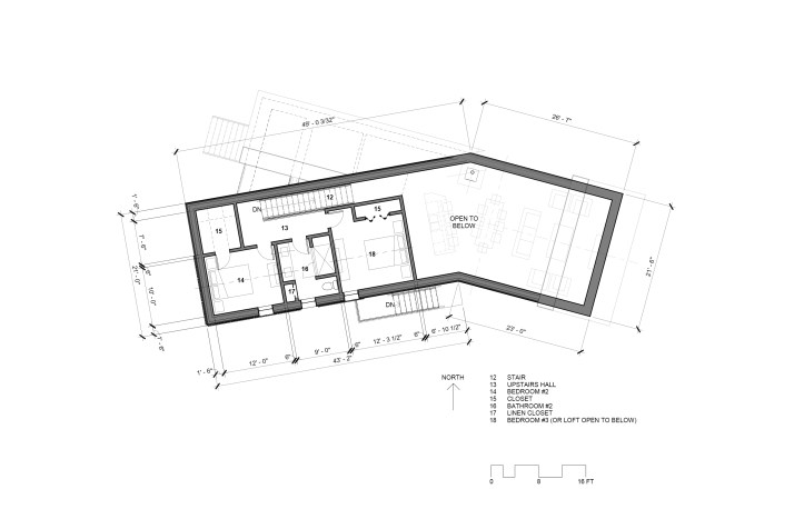
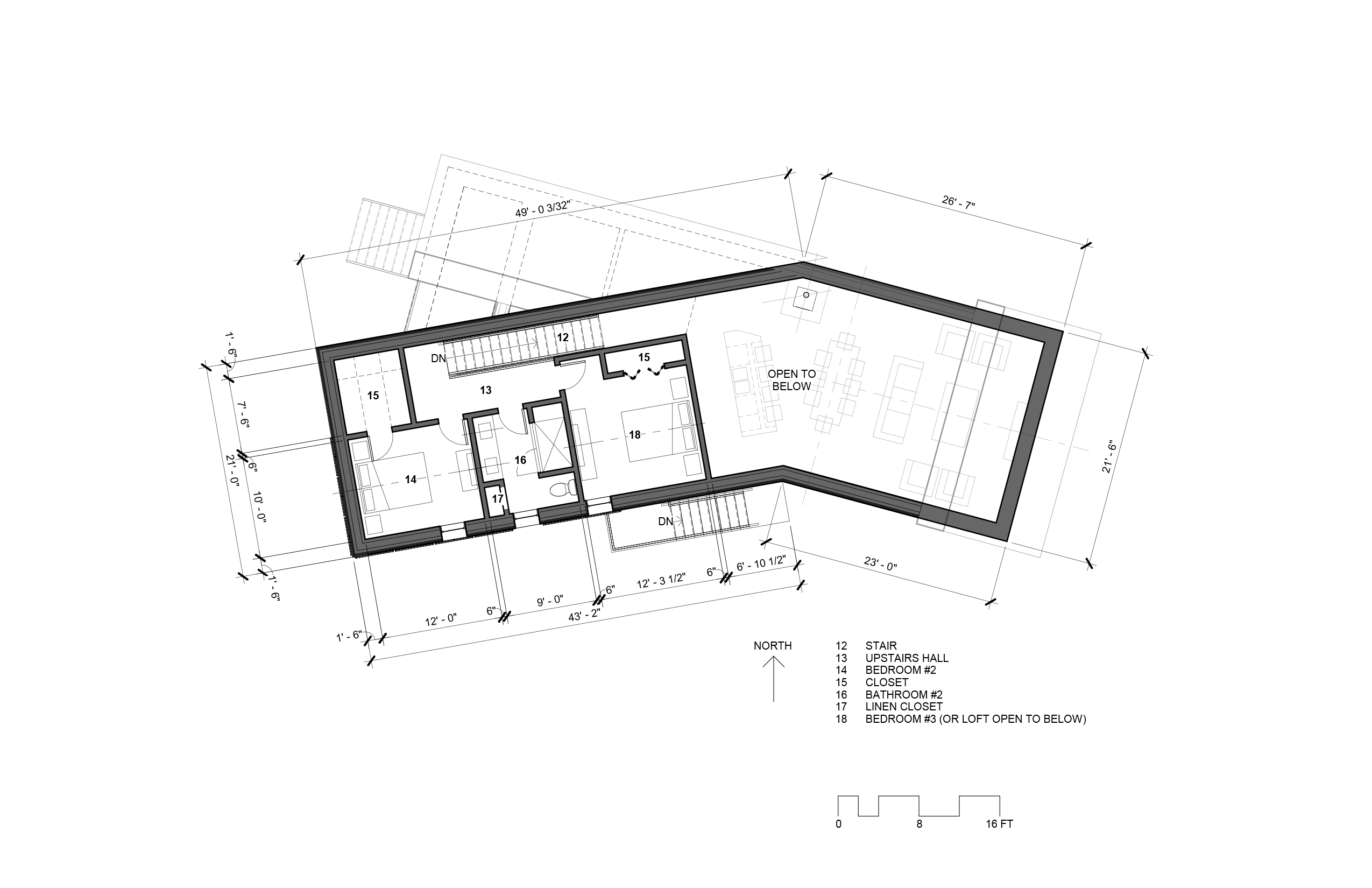
The house is designed around the spatial needs of the Tyonek family featuring flexible living space, particularly the main dining and living areas, and three private bedrooms that o er abundant storage. One of two entryways has an arctic entry that allows direct access into the living room. Local funerary practices require this direct entryway for bringing the co n of the deceased into the home. The large living spaces are also designed for these cultural gatherings with ample flexible space that can accommodate large groups of people. On the exterior of the home, a warm material palette is used to contrast the cold climate of Tyonek.
Engineering
The heavy emphasis placed on the thermal control of the house drives the primary engineering decisions. A truss system envelops the house to provide ample wall, floor, and roof cavity space for insulation. The average R value of around 80 coupled with ensured air tightness minimizes heat loss and air infiltration. The house is lifted above the ground to reduce thermal transfer in the foundation system. The structural system that raises the house uses a foundation of wood bearing pads and adjustable posts and a substructure of glulam beams that allows adjustments to address differential settling caused by the constant freezing and thawing of the ground.
Market Analysis
The predominant ethnicity in this location are those of Native Alaskan descent, with the typical age demographic being those of working age or older. The Tribal Council has requested that the design consider aging in place to keep the community close. The median household income in Tyonek is $38,125 (2020 dollars, per the US Census Bureau). Construction costs work out to $353/sf, accounting for shipping materials from Anchorage. Our proposal uses a combination of prefabricated off-site construction (for wood truss components) and on-site construction to maximize quality and construction efficiency while reducing cost. We will seek federal funding and support from our industry partners for housing and energy generation.
Durability & Resilience
Selecting durable, maintainable materials and systems selection allows the home to remain within the family for generations to come. Interior and exterior wood finish choices display respect for the natural environment. Using a metal roof and charring the main wood siding will make the home more resilient to weathering in the cold climate, and at the end of the home’s lifecycle these materials can be recycled or reused.
Embodied Environmental Impact
The Life Cycle Analysis (LCA) results show a reduction of embodied carbon of 45% compared to a code-compliant baseline. Materials, products, equipment, and services were sourced as locally as possible to minimize carbon emissions in transport. Transportation related carbon emissions were evaluated against the onsite benefits of the materials and systems.
Integrated Performance
Incorporating the PV panels into the facade is vital to their performance. The vertical installation is compatible with the sun’s low angles and reduces snow and ice accumulation, maximizing energy generation throughout the year. The PV panels are accessible and easy to maintain, appropriate for a community that emphasizes aging in place.
Occupant Experience
After discussion with the Council, the desire for large, flexible communal spaces was considered a priority. In addition, we have provided a separation of public and private spaces across the two story floor plan. The home has two arctic entry points, one for public use and one for private use that contains storage and space for utilities.
Comfort & Environmental Quality
The proposal aims to enhance indoor air quality through moisture management and reduced air infiltration in the envelope. Ventilation is provided by a mechanical heat recovery ventilator. The materials are non-toxic and natural daylighting strategies are utilized. While the windows will cause heat loss, they have been strategically placed on the home’s south facing elevation to provide natural light for occupant comfort. Orientation of the home takes advantage of sun angles throughout the seasons to maximize light and minimize heat loss.
Energy Performance
The long-term goal of this project is not to create a singular sustainable home, but rather a sustainable and self-sufficient community within Tyonek. The proposal begins with an individual home but is intended to be the first step in upgrading and replacing homes throughout the village. In addition to the 5kW PV system on the home, Tyonek is implementing a village-scale solar farm in coordination with other organizations, providing a reliable energy source for many generations to come. An air source heat pump, in conjunction with a ductless mini-split conditioning system, is the primary source of space heating and a heat pump water heater provides for hot water demand. The critical nature of heating and the remote location and potentially limited winter access for parts and repairs requires a wood stove as a backup system. Wood in the Tyonek community is a renewable resource.







































You must be logged in to post a comment.