Headquarters for Anthropocene Alliance + Private Residence
Micanopy, Florida U.S.A.
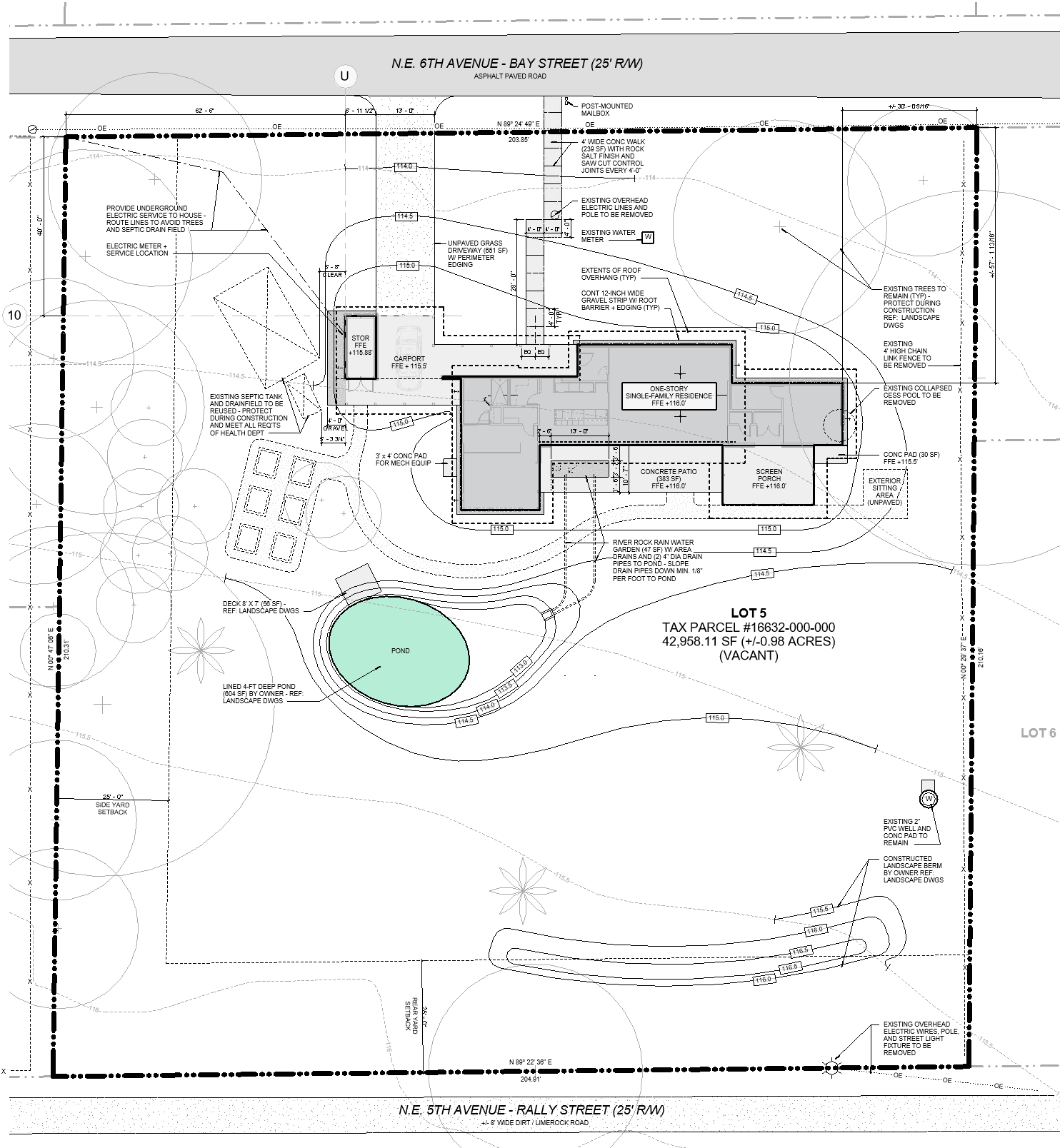
Situated in Micanopy, Florida, the A2 House embraces its natural and native Florida landscape. Heritage oaks, magnolias, cedar, citrus, and palm trees embrace the house and gardens. A large, low-slope metal roof gathers roof rainwater and directs it into an on-site pond and bird sanctuary, located just south of the residence. Rooftop solar arrays generate power for the residence. Below the roof, domestic spaces are organized around an extensive collection of art and literature.

The overall roof area totals 3,674 ft2 of covered area. The project includes 1,788 ft2 conditioned floor area, a 285 ft2 exterior screened room, 110 ft2 exterior storage, a covered porch, covered car/bicycle parking area, and an open south-facing terrace.


















You must be logged in to post a comment.